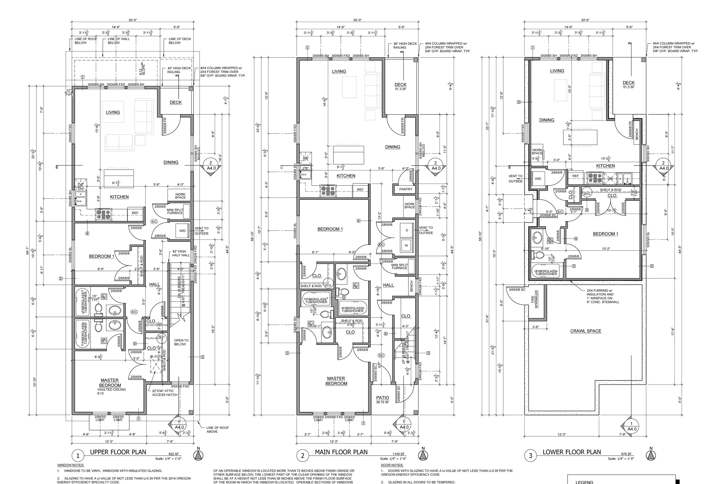
Annand Hill Duplexes – Tigard, Oregon

A development of three ground-up duplex buildings, each designed with a mix of unit types: one 1-bedroom/1-bath and one 2-bedroom/2-bath per structure. Scope of work included complete drafting services, comprehensive construction documentation, and management of all building permit submittals. 

https://www.annandhill.com/ 

Next
Next

Project Two