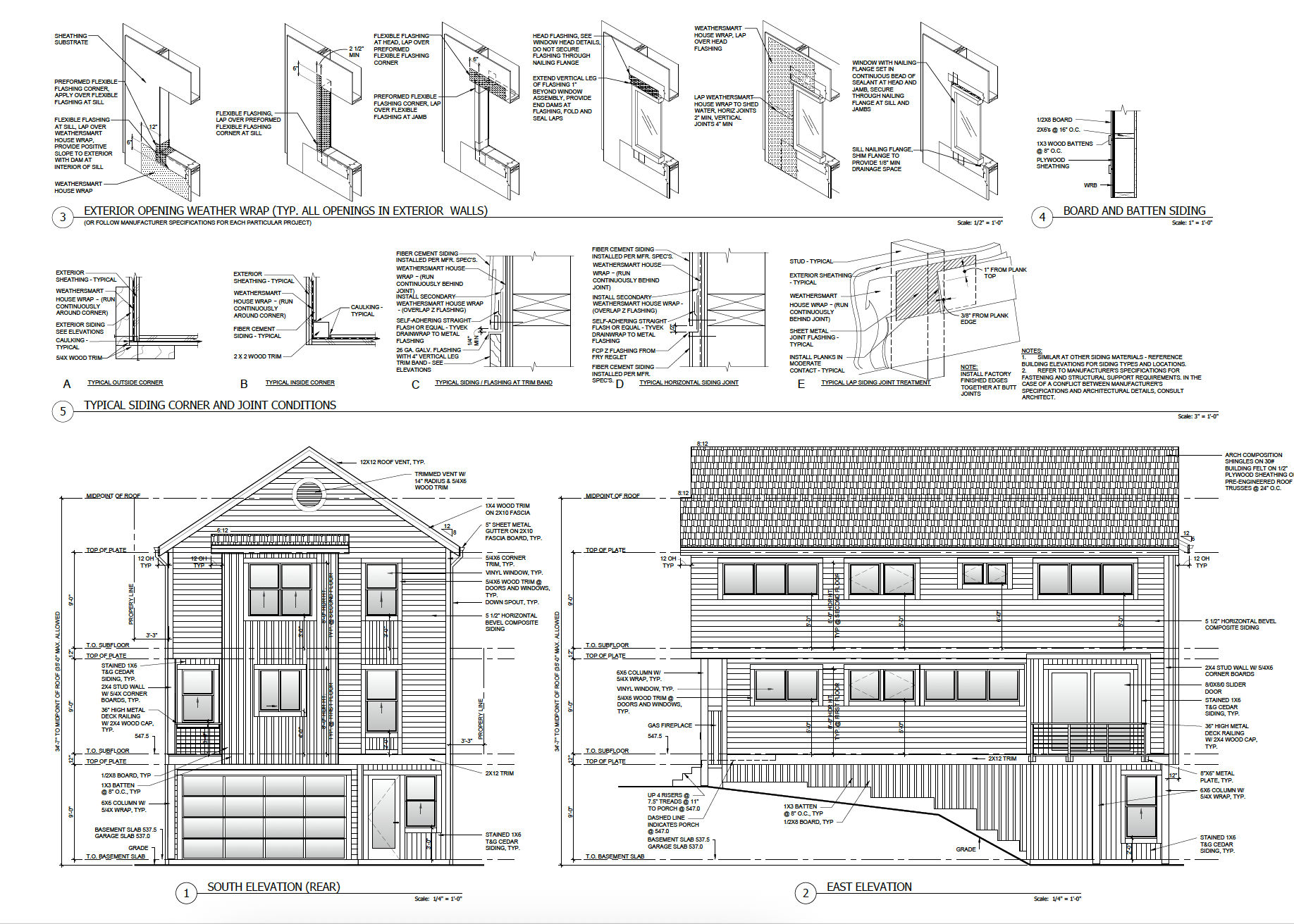
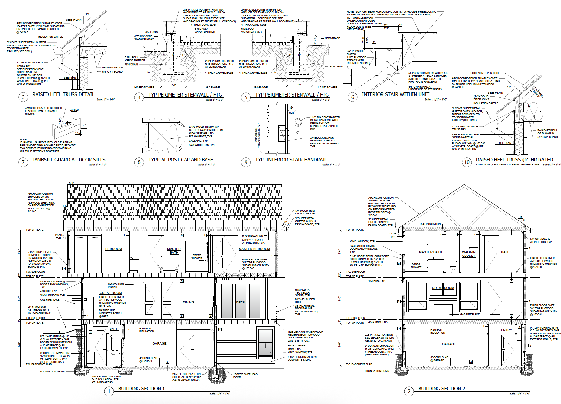
SW 18th Lot 3 – Portland, Oregon

Part of a nine-home development in Portland’s South Hills, with residences ranging from approximately 2,600–3,200 square feet and select homes incorporating basement ADUs. The project required efficient use of 33-foot-wide parcels while adhering to strict community design guidelines.

I provided design assistance, full drafting services, construction document preparation, and building permit submittals for all nine lots.

Previous
Previous

Project One

Next
Next

Project Three