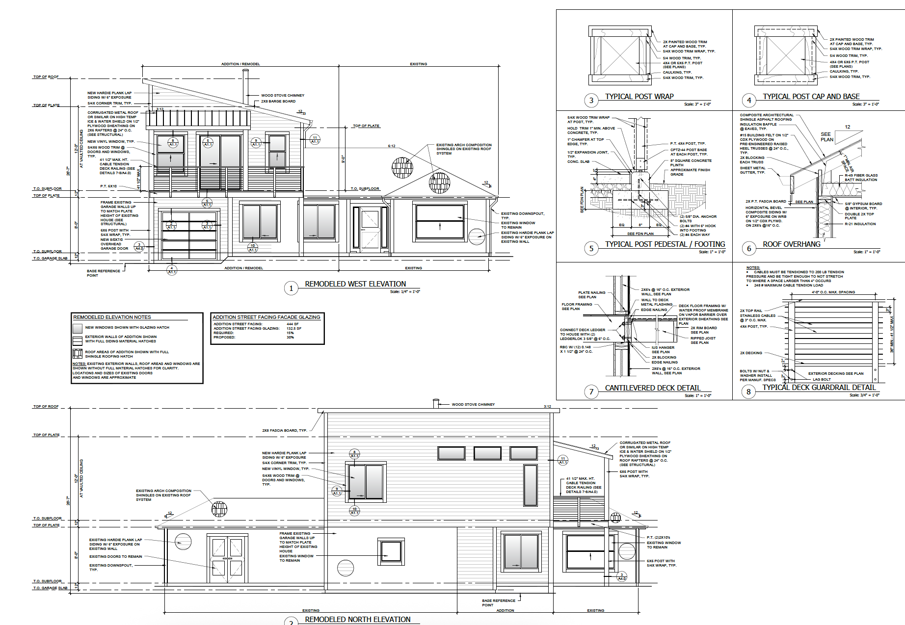
Wellness Office Addition & Rooftop Deck– SE Portland, Oregon

A second-story addition constructed above an existing garage, designed to accommodate a wellness office space and rooftop deck. I provided design support, complete drafting, and as-built documentation for the project.

Previous
Previous

Project Two